Prodej rodinného domu ve Vlčnově
RD 2+1 se zahradou
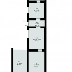
Prodej staršího rodinného domu o velikosti 2+1, který se nachází v klidné části obce Vlčnov. Dům je v dobrém technickém stavu, napojen na elektřinu 220/380 V, odpad - septik s možností napojení na obecní kanalizaci, voda je napojena na studnu. Topení zajištují nové elektrické přímotopy a krbová kamna. Dispozičně se jedná o vstupní chodbu, kuchyň navazující na koupelnu s toaletou. Dále průchozí obývací pokoj s krbovými kamny a ložnice. Na dům navazuje dvorek se soukromím a podsklepená budova se skladovacími prostory. Součástí prodeje je svažitá zahrada s ovocnými stromy odkud je krásný výhled na okolí. Parkovat je možné v průjezdu do dvora. Jedná se o příjemné bydlení se soukromím a nízkými náklady na bydlení. Dům je vhodný k trvalému bydlení nebo jako chalupa. V dosahu se nachází dětské hřiště a obchody. Dům je ihned k nastěhování.
Rychlý kontakt: Blanka Liškovát: 608 443 448
e: liskova@foxreal.cz
Zaujala Vás tato nemovitost?
Neváhejte a zavolejte nám na telefon +420 608 443 448

